Tempio dedicato al dio fenicio Eshmoun curativo, si trova ad appena un chilometro dalla città di Saïda nel sud del Libano.
Ora è iscritto nella lista provvisoria del patrimonio mondiale dell’UNESCO per la sua importanza archeologica.
Guarda il nostro video documentario
Chi era Eshmun?
In origine, una giovane cacciatrice di Qabr Chmoun vicino a quella che sarebbe diventata Beirut e di cui Astarté si era follemente innamorata, Eshmoun dovette mutilarsi per sfuggire alla Dea. Tuttavia, ne morirà.
Astarté lo riporterà in vita.
Questa storia ricorda quindi quella della leggenda di Adone.
Explorez la carte en direct des evenements et points de situation.
Sarà assimilato ad Asclepio presso i Greci e ad Esculapio presso i Romani. Ancora oggi, Echmoun rimane un importante simbolo della Medicina. Infatti è il suo caduceo ad essere ancora utilizzato come simbolo: sono i due serpenti avvolti intorno a un bastone.
All’origine di questo simbolo oggi ampiamente utilizzato come simbolo dei medici, una targa d’oro rinvenuta nei pressi del tempio di Echmoun dove la dea della salute, Igea, e il dio Echmoun sono rappresentati nella mano destra un bastone attorno al quale è avvolto un serpente .
L’importanza del tempio di Eshmoun a Saïda
Echmoun diventerà anche il Patrono della città fenicia di Saïda che organizzerà un importante pellegrinaggio nelle sue vicinanze. La scelta del sito sarebbe motivata dall’esistenza del fiume Al Awali che scorre nelle vicinanze e da una sorgente utilizzata per bagni rituali.
Fu durante il regno del re di Sidone Eshmounazar II – il cui sarcofago è ora al Museo del Louvre – durante il periodo achemenide che inizierà la costruzione di questo tempio.
Il sito fu poi oggetto di numerosi rimaneggiamenti e aggiunte tra la fine del VII secolo a.C. fino al VII – VIII secolo d.C.
Ci sono quindi stili diversi, che vanno dall’influenza persiana, greca, ellenica o addirittura romana.
Il tempio non fu scoperto fino al 1900 dai saccheggiatori di tesori. Presto verranno effettuati scavi ufficiali per preservare la nuova scoperta.
Fu allora che Maurice Dunand, un archeologo francese che si occupò anche del sito archeologico di Byblos, scavò a fondo il sito dal 1963 fino all’inizio della guerra del Libano nel 1975.
I manufatti del Tempio di Echmoun dovranno ancora subire i loro lotti di furto. Così, mentre una parte delle sue collezioni era stata messa al sicuro a Biblo da il direttore della DGA Maurice Chéhab , a causa della sua vicinanza ai campi palestinesi e dell’elevata probabilità di furti dal sito stesso, 600 di questi pezzi, che vi erano conservati, verranno trafugati nel 1981 e rivenduti al mercato nero. Solo 9 di loro sono stati trovati nel 2009 e sono stati restituiti in Libano. 4 di loro sono esposti al Museo Nazionale dopo essere stati rimpatriati dagli Stati Uniti nel 2018.
Recuperate parti rubate
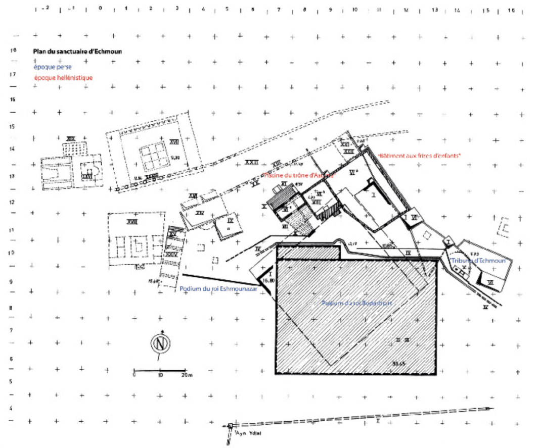
Mappa del sito

Il sito è oggi in pessime condizioni e presenta, oltre al podio e al tempio stesso, mosaici e cisterne che servivano per i bagni rituali.


























Tra gli elementi notevoli ancora in atto, una serie di colonne romane del III secolo d.C., costruite dall’imperatore Settimio Severo.
Fu al tempo del paleocristianesimo che il sito cadde gradualmente nell’oblio. Le sue pietre verranno utilizzate prima per riparare le strutture danneggiate da un terremoto nel 570 d.C.
Il culto di Echmoun sarà poi proibito anche durante la persecuzione pagana durante l’estinzione dell’Impero Romano. Però, il tempio non sarà devastato come il tempio di Astarte da Afqa .
Poi una chiesa bizantina, situata nelle vicinanze, riutilizzerà parte dei suoi materiali. Sono i mosaici di questa chiesa che possiamo vedere sul posto.
Questa pratica di riutilizzo dei materiali durerà fino al XVII secolo, con il riutilizzo delle pietre per la costruzione di un ponte durante il governo dell’emiro Fahr al Din II che voleva fare della città di Saïda la sua capitale economica.
La tribuna o podio del tempio di Echmoun
Nel tempio di Echmoun è stato ritrovato anche un Podio Monumentale composto da un blocco monolitico di marmo originario della Grecia e oggi conservato presso il Museo Nazionale di Beirut. Fu fondato dal re Echmounazar II nel V secolo aC e mentre Saïda era sotto l’influenza achemenide.
Secondo gli studi archeologici effettuati, invece, sarà ampliato dal re Bodashtart.
Gli dei greci appaiono sui numerosi bassorilievi su ogni lato. Le figure sembrano essere state vandalizzate in particolare sui volti.





Maggiori informazioni su questo argomento
Un nuovo monumento dell’arte greca in Fenicia: la “tribuna” del santuario di Echmoun a Sidone
I troni di Astarte dal Museo Nazionale
Trovato nel tempio di Echmoun e ora in mostra al Museo Nazionale di Beirut, i troni di Astarte sono generalmente datati all’epoca persiana, ellenistica e romana. La dea è rappresentata dai suoi attributi animali come le sfingi alate, la palmetta o anche un betile o una pietra che simboleggia la divinità.






Gli ex voto del tempio di Eschmoun esposti anche al Museo Nazionale
Ora in mostra nel Museo di Beirut, le offerte votive sono state originariamente trovate nel Tempio di Eshmoun.
11 di loro sono stati trovati lì.
Come a Biblo, dove sono stati ritrovati numerosi ex voto a forma di ancora, il culto di Echmoun questa volta era principalmente dedicato alla cura delle malattie infantili.
Pertanto, era consuetudine offrire al dio statuette in marmo, un materiale costoso importato dalla Grecia e in cui compaiono i nomi dei bambini i cui genitori cercavano la guarigione.




Per ulteriori
Marmo greco in Fenicia. L’ascesa e la caduta di Sidone nei periodi persiano ed ellenistico
Tra gli altri reperti sulla scena, un sarcofago antropoide in Anfibolite nera che oggi si trova al Museo del Louvre . Sarebbe quello del suo primo costruttore, il re Echmounazar II, dove si trovano molte iscrizioni.
Per arrivarci
Leggi anche








